注目アイテム

【CES9425PX #NW1】 《TKF》 TOTO ウォシュレット一体形便器GG2 ホワイト ωγ1

Item Number 9

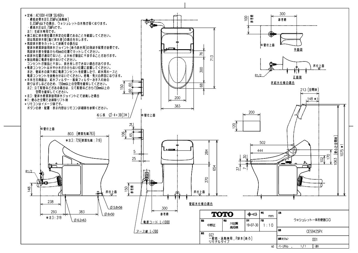
メーカー希望小売価格はメーカーカタログに基づいて掲載していますPDFはこちら品番:CES9425PX #NW1品名:ウォシュレット一体形便器GG2受注開始日:2020/01/06出荷開始日:2020/01/23

Item Number 9

Review Count レビュー件数 0件
Review Average レビュー平均 0(5点満点)
Shop Name ショップ 住宅設備機器 tkfront
Price 商品価格 124,021円(税込み)

この商品を買った人は、こちらの商品にも興味をもっています。

こちらも一緒にいかがですか